5200 RR 1120, Rio Frio


Carrie Chisum

Carrie Chisum
REALTOR®/BROKER
Office (830) 232-4808
Cell (830) 275-3727
Email Carrie

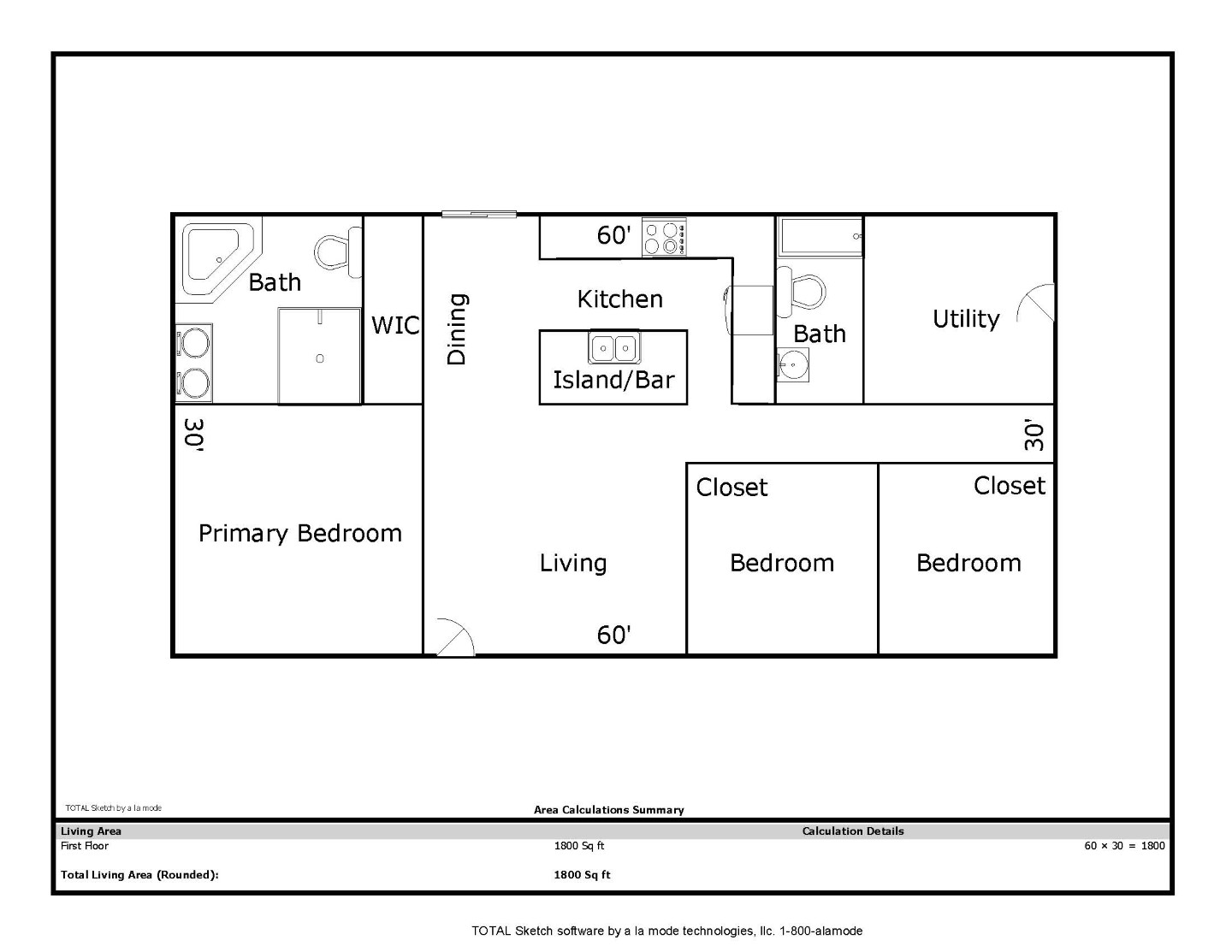
Introducing a well-maintained 3 bedroom, 2 bathroom manufactured home situated on nearly two acres. Constructed in 2016, the residence offers 1,800 square feet of living space with a split floorplan, high ceilings, new carpeting in both the living room and primary bedroom, ample storage throughout, and abundant natural light. The modern kitchen is appointed with stainless steel appliances and granite countertops. The primary bedroom includes coffered ceilings, a walk-in closet, and an ensuite bathroom featuring dual vanities, a soaking tub, and a walk-in tiled shower with glass surround. The secondary bathroom is equipped with a shower/tub combo. An oversized utility room provides a sink, additional counterspace, and enough area to accommodate an extra refrigerator or freezer. Exterior amenities include a detached 20'x22' carport with an attached storage area for lawn equipment, a new weather-proof shipping container, and a smaller storage building. A 680' deep water well was drilled and equipped in 2021. A second shallow water well with storage tank is also in place. Enjoy entertaining in the large backyard with hill country views and majestic sunsets! No HOA or annual dues.
Listed at $250,000 - PENDING
Survey
Sellers Disclosure
Flood Map
Floor Plan
Statement of Location

Click an image to see a larger version, scroll down for a map
Solid Rock Real Estate
Solid Rock Real Estate
Solid Rock Real Estate
Solid Rock Real Estate
Solid Rock Real Estate
Solid Rock Real Estate
Solid Rock Real Estate
Solid Rock Real Estate
Solid Rock Real Estate
Solid Rock Real Estate
Solid Rock Real Estate
Solid Rock Real Estate
Solid Rock Real Estate
Solid Rock Real Estate
Solid Rock Real Estate
Solid Rock Real Estate
Solid Rock Real Estate
Solid Rock Real Estate
Solid Rock Real Estate
Solid Rock Real Estate
Solid Rock Real Estate
Solid Rock Real Estate
Solid Rock Real Estate
Solid Rock Real Estate
Solid Rock Real Estate
Solid Rock Real Estate
Solid Rock Real Estate
Solid Rock Real Estate
Solid Rock Real Estate
Solid Rock Real Estate
Solid Rock Real Estate
Solid Rock Real Estate
Solid Rock Real Estate
Solid Rock Real Estate
Solid Rock Real Estate
Solid Rock Real Estate
Solid Rock Real Estate
Solid Rock Real Estate
Solid Rock Real Estate